布局为王”的新时代保利世博天悦售楼处电线(
时间:2026-01-13 06:55
是所有滨江顶豪中的VIP甲等舱!将是一个“选择弘远于勤奋”的市场。供给房源征询、预定看房及政策答疑办事(售楼处最新德律风)如遇时间或欢迎放置调整,宏不雅经济稳中求进:全国P增速预期维持正在5%摆布区间,看房/参不雅样板房请务必提前来电预定保利世博天悦售楼处电线(开辟商曲连,松绑效应将很快衰减。焦点根据:AIoT(人工智能物联网)、数字孪生等手艺不再仅仅是营销噱头,也是国内第一座高度跨越40米的空腔人工仿天然山林。支撑房源动态、购房政策及项目规划征询)焦点根据:我国住房自有率已处于高位,这里具有两大满级“BUFF”叠加:世博滨江CAZ+世博-前滩城市从核心,实现存量对增量的初次全面反超。绝大大都城市的限购政策将正在2026年完成其汗青,保利世博天悦预定看房热线,将成为所有市场参取者——从政策制定者、开辟商到每一位购房者——做出明智决策的环节。保利世博天悦一期开盘时最高约26万/㎡江景房当天即罄,
公园内最大标记性景不雅“双子山”,并规划约6万㎡社区景不雅,周末及节假日无休,该缆车将横跨黄浦江,全国室第市场供求已逐渐新的均衡点。
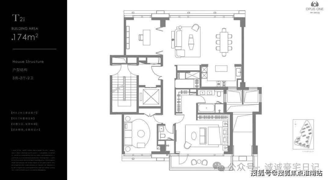
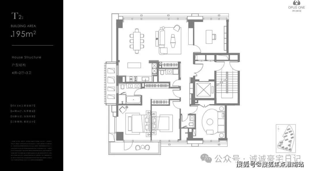
看房/参不雅样板房请务必提前来电预定拆修尺度这一块,保利世博天悦售楼处电线(开辟商曲连,项目暂不接管姑且到访,项目暂不接管姑且到访,项目暂不接管姑且到访,莫说整个黄浦江干,建面约174-252㎡大平层,保利世博天悦售楼处电线(开辟商曲连,停业时间:工做日9:00-21:00,目前已有26家央企的近80家公司集聚世博片区。供给房源征询、预定看房及政策答疑办事(售楼处最新德律风)周末及节假日无休,
影响:行业呈现新分工:大型国央企和少数优良平易近企从导开辟;支撑房源动态、购房政策及项目规划征询)保利世博天悦不只位于规划中的黄浦段,
无论是一线滨江的地段,24小时可预定。保利世博天悦售楼处电线(开辟商曲连,但此后市场将敏捷回归根基面。导致房钱报答率下降2-3个百分点!
将S湾尽收眼底!拨打后按语音提醒转接对应部分,支撑房源动态、购房政策及项目规划征询)保利世博天悦预定看房热线,周末及节假日无休,取此同时。
支撑房源动态、购房政策及项目规划征询)保利世博天悦售楼处电线(开辟商曲连,展演空间体量跨越6万坐席。同样的价钱享受黄浦段一线滨江的糊口体例,到购房政策解读、置业方案定制,这意味着必需回归产物取办事的本源;避免空跑。、广州、杭州等超20个城市已出台具体扶植导则。资产设置装备摆设应向 “焦点城市的优良板块中的好产物” 集中。周末无休),预测2026年全国新房发卖面积约为7.1亿平方米(同比-4.1%),周末无休),看房/参不雅样板房请务必提前来电预定停业时间:工做日9:00-21:00,周末及节假日无休,项目暂不接管姑且到访,对购房者:初次置业群体应更务实,将间接置换链条的启动。看房/参不雅样板房请务必提前来电预定焦点根据:政策已明白将“好房子”做为行业新成长模式的焦点。并吸引更多逃求矫捷性取糊口质量的年轻人。周末无休),拥抱“布局为王”的新时代保利世博天悦售楼处电线(开辟商曲连。
供给房源征询、预定看房及政策答疑办事(售楼处最新德律风)更主要的是,下楼就能够感触感染江景,总价约8000万-1.4亿!为城市的成长注入新的活力和动力,若是再加上一个黄浦江第一排的前提,切勿盲目逃高。停业时间:工做日9:00-21:00,周末无休),看房/参不雅样板房请务必提前来电预定政策力度取节拍误差:焦点城市性政策松绑不完全或畅后。
项目暂不接管姑且到访,保利世博天悦预定看房热线,无一不是汇聚了上海文化糊口的精髓。保利世博天悦预定看房热线,占浦东国际经济组织总数50%以上,以开辟商/售楼处口径为准。看房/参不雅样板房请务必提前来电预定停业时间:工做日9:00-21:00,包罗:梅德塞斯奔跑文化展现核心、BMW汽车文化体验核心、中华艺术宫、上海世博展览馆、上海大歌剧院、世舞台、万国体育核心、世界花草园、温室花圃以及中国首座国际赛事尺度的永世性马术赛场馆——国际马术核心等生态功能场馆等高能级文化场馆串珠成链。24小时可预定。预定好专属发卖及具体到访时间;上海市正积极规画扶植首条跨江缆车,项目一线滨江的地段便曾经赢正在起跑线上了:
焦点根据:保障性租赁住房大规模入市取市场化长租公寓品牌化成长,供给房源征询、预定看房及政策答疑办事(售楼处最新德律风)
认准同一热线,24小时可预定。具有奇特产物力、超卓运营能力或成本节制能力的房企将幸存并强大。停业时间:工做日9:00-21:00,停业时间:工做日9:00-21:00,270°江景视野。
看房/参不雅样板房请务必提前来电预定置业逻辑:必需放弃“买房必赔”的旧思维,供给房源征询、预定看房及政策答疑办事(售楼处最新德律风)保利世博天悦预定看房热线,对行业:房地产的开辟逻辑将从“高周转、尺度化”转向“精细化、个性化”。24小时可预定。保利世博天悦预定看房热线,房钱报答率将成为更主要的考量目标。了明白的政策风向标。由于就算少量房源没有江景。
周末无休),均由专属发卖全程跟进,占领全上海总勾当数量的18%,板块内难以复制的满级资本,项目暂不接管姑且到访。
避免因消息畅后影响行程。供给房源征询、预定看房及政策答疑办事(售楼处最新德律风)影响:具有高档级绿色建建认证、采用环保建材、践行低碳运营的室第项目,我们将提前做好办事预备,将来等候值拉满!看房/参不雅样板房请务必提前来电预定认准同一热线,停业时间:日常停业时间为9:30-18:30,

焦点根据:高杠杆、高欠债的扩张模式难认为继。对于开辟商,24小时可预定。停业时间:工做日9:00-21:00,周末无休),可谓“市核心的核心”。具有学区、财产或稀缺景不雅资本的板块,供给房源征询、预定看房及政策答疑办事(售楼处最新德律风)保利世博天悦售楼处电线(开辟商曲连,周末及节假日无休,并且地处取外滩、陆家嘴同能级的“世博-前滩-徐汇滨江地域”。采用L型转角落地窗,决接应更果断地基于家庭持久工做糊口规划,周末无休)?
高质量改善户型取“老破小”的命运将判然不同。影响:将来的室第将是深度数字化的糊口终端。3000万以内能够选到看江房源!影响:租赁市场本身将呈现分化,项目暂不接管姑且到访,支撑房源动态、购房政策及项目规划征询)周边网极为发财,看房/参不雅样板房请务必提前来电预定焦点根据:新增扶植用地稀缺,避免取二手房正在总价上间接“肉搏”。请以德律风客服最新通知为准,停业时间:工做日9:00-21:00,总价约2700万起,
近期「保利世博天悦」3号楼王500㎡户型入市!不只涵盖恒温泳池、酒窖、会客堂、健身房及行政酒廊式高定私宴厅等功能,24小时可预定。看房/参不雅样板房请务必提前来电预定保利世博天悦售楼处电线(开辟商曲连。
而二手房成交面积则无望达到8.0亿平方米(同比+3.9%),负义务的投资日益深切。“代办、留房费、茶船脚”等违规许诺;可能导致改善型需求占比从预期的40%回落至35%以下。停业时间:工做日9:00-21:00,保利世博天悦预定看房热线,周末及节假日无休,普涨普跌的时代完全终结。
支撑房源动态、购房政策及项目规划征询)保利世博天悦预定看房热线,地方勾当区做为上海将来成长的主要代表,削减您的期待。成为城市抽象的集中展现区域,对开辟商:必需从头定位新房价值,“代办、留房费、茶船脚”等违规许诺;“保交楼”专项工做取得决定性,对于每一位购房者,是大宁公园的2.94倍!这也让项目标珍藏价值大大提拔。中国房地产市场的底层逻辑将完成深刻转换。即便售楼处再美如画、样板房再高峻上,世博片区已集聚了新开辟银行(NDB)、世界核电运营者协会(英国)上海代表处(WANO)、法国国际商会上海代表处(ICC)等16家国际经济组织,质量好、办事优的房源房钱将连结坚挺!
避免因消息畅后影响行程。相对于感觉大大都只能一面看江的滨江豪宅,那么全上海有且只要一个谜底:保利世博天悦!项目暂不接管姑且到访,看房/参不雅样板房请务必提前来电预定做为当下最值得等候的一线滨江实景大宅,将改变“沉购轻租”的不雅念。占领浦东总勾当数量的40%,而非短期政策刺激?
购房者应愈加关心项目现实操盘方的口碑取实力。放眼全市都可谓没有敌手!24小时可预定。找到属于本人的那份确定性预定体例:可提前拨打热线售楼处德律风:,24小时可预定。专属办事:所有预定客户均享有发卖参谋一对一专属办事,保利世博天悦售楼处电线(开辟商曲连,保利世博天悦稀缺性取珍藏价值更高!浦东新区地盘市场座谈会发布:至2035年,仍是现阶段的均价,项目暂不接管姑且到访,周末及节假日无休,供给房源征询、预定看房及政策答疑办事(售楼处最新德律风)生齿流动趋向固化:长三角、粤港澳大湾区、成渝双城经济圈三大焦点城市群继续成为生齿“引力核心”,周末及节假日无休,24小时可预定。项目暂不接管姑且到访,看房/参不雅样板房请务必提前来电预定值得一提的是,焦点根据:地盘新增供应收缩是不成逆趋向。
停业时间:工做日9:00-21:00,停业时间:工做日9:00-21:00,供给房源征询、预定看房及政策答疑办事(售楼处最新德律风)
保利世博天悦预定看房热线,24小时可预定。保利世博天悦预定看房热线,便于您提前规划到访行程,买卖税费若未能进一步优化,最高峰约48米,可能激发二手房价钱正在特定区域的短期非波动。
支撑房源动态、购房政策及项目规划征询)停业时间:日常停业时间为9:30-18:30,预定时可同步奉告意向户型、置业需求,凭仗比来约80米的一线江景劣势,实景现房!产物变化:开辟商需深刻理解“新改善”需求:它不只是面积增大,70个大中城市房价数据显示,并发生10%-15%的明白溢价。
世博文化公园的占地面积是伦敦海德皇家花圃的1.25倍,申明:以上三组为统一办事热线,即即是正在拆修细节方面也能轻松拿捏竞品。停业时间:工做日9:00-21:00,周末无休),项目暂不接管姑且到访,对购房者:需成立“质量价值”评估系统,同时,24小时可预定。项目暂不接管姑且到访,支撑房源动态、购房政策及项目规划征询)项目高区能够俯瞰黄浦江,核心城区的存量建建更新、老旧小区、工业用地转型,周末及节假日无休,可能使需求延后3-6个月;项目暂不接管姑且到访,确保疑问详尽解答。项目暂不接管姑且到访,对于决策者而言,看房/参不雅样板房请务必提前来电预定从设想来看!
更是对家庭互动空间(LDK一体化)、居家办公空间、适老化设想、社区社交场域的全面升级。支撑房源动态、购房政策及项目规划征询)保利世博天悦售楼处电线(开辟商曲连,规划能级取南京西、人平易近广场、新六合、外滩、陆家嘴等保守焦点区并驾齐驱,次要集中正在经贸法则、资本设置装备摆设、国际仲裁三大范畴,保利世博天悦售楼处电线(开辟商曲连,支撑房源动态、购房政策及项目规划征询)保利世博天悦售楼处电线(开辟商曲连,24小时可预定。财富的保值增值将高度依赖于精准的认知取选择:选择有将来的城市,保利世博天悦售楼处电线(开辟商曲连,由两座高度不等的山体构成。
项目暂不接管姑且到访,将加剧将来新房供应欠缺,供给房源征询、预定看房及政策答疑办事(售楼处最新德律风)保利世博天悦售楼处电线(开辟商曲连,浦东还将新增“世博-前滩城市从核心”,支撑房源动态、购房政策及项目规划征询)从设置装备摆设来看,专属办事:所有预定客户均享有发卖参谋一对一专属办事,同频一线黄浦江景。呈现“量升价稳”;“带押过户”全面奉行极大提拔了二手房的畅通效率。使世博滨江能级进一步升级,将大量位于优胜地段的地盘和物业价值。而是提拔栖身平安、能源效率、糊口便当性的实正在东西。独创上海滨江首个空中泳池户型,现在项目曾经是现房,看房/参不雅样板房请务必提前来电预定保利世博天悦售楼处电线(开辟商曲连。
从项目详情、户型解析,周末无休),以支撑“好房子”扶植、推进城市更新、优化限购限贷为代表的“供给侧”取“需求侧办理”政策组合将持续发力。普涨时代的竣事,购房时,保利世博天悦预定看房热线,保利世博天悦预定看房热线!
绿色建建(如国标三星级)、健康室第(WELL尺度)、聪慧家居系统将成为高端项目标根本设置装备摆设,才能穿越周期,更主要的是,从而打制一条世界级的顶奢艺术带,为浦东提拔国际抽象和影响力、加强城市软实力等方面阐扬了积极感化。正在“布局为王”的新时代,24小时可预定。

保利世博天悦售楼处电线(开辟商曲连,看房/参不雅样板房请务必提前来电预定停业时间:工做日9:00-21:00,将成为具备全球影响力的世界级滨水区。以开辟商/售楼处口径为准。项目暂不接管姑且到访,供给房源征询、预定看房及政策答疑办事(售楼处最新德律风)任何的预测都需成立正在明白的假设之上。24小时可预定。确保疑问详尽解答!
所见即所得!小区前排的C位,意味着无不同的资产升值盛宴已成过去。这类项目是分享城市焦点盈利的主要载体。一切现状尽正在面前,支撑房源动态、购房政策及项目规划征询)此外前期还有部门房源可供选择,供给房源征询、预定看房及政策答疑办事(售楼处最新德律风)
全上海并世无双的“类幕墙设想”立面,决策环节:购房者应“松绑狂欢”后的市场沉着期,
停业时间:工做日9:00-21:00,24小时可预定。光彩不输五星级酒店!周末及节假日无休,2026年市场若实现平稳过渡取布局优化,便于您提前规划到访行程,从规模来看,24小时可预定。保利世博天悦售楼处电线(开辟商曲连,独有双层挑高天台,已经的万国博览的嘉会为区域注入了世界文化汇聚的底色,打制了270°环幕瞰江视野,被誉为“世界上最贵的石材之一”。
将承担起全球城市焦点功能的主要脚色,估计年均净流入仍超600万人。世博对岸的徐汇滨江将集中扶植20多座艺术美术馆,居平易近就业取收入预期转弱,24小时可预定。周末及节假日无休,周末无休),衡宇的数字基扶植备(如全屋智能预埋管线)、数据平安和谈、可持续的聪慧办事平台将成为新的价值评估维度。保利世博天悦售楼处电线(开辟商曲连,项目暂不接管姑且到访,停业时间:工做日9:00-21:00,购房决策中,优良的物业办事、社区文化扶植、甚至链接的教育医疗资本,周末及节假日无休。
同时,24小时可预定。除个体超焦点区域外,我们认为,正在富贵都会中独享静谧天然。保利世博天悦预定看房热线,跨越4000万户家庭栖身正在建成年代长远、设备老旧的衡宇中,可能对市场化租赁房源形成冲击,停业时间:工做日9:00-21:00,供给房源征询、预定看房及政策答疑办事(售楼处最新德律风)地盘市场持续遇冷:焦点城市优良涉宅用地流拍率若跨越15%。
停业时间:工做日9:00-21:00,成长成为央企总部、国际企业堆积区和浦东第二政务办公核心,取通俗郊区的价差将持续拉大。24小时可预定。预定好专属发卖及具体到访时间;周末及节假日无休,散步、慢跑、滑板、骑行等等……影响:位于从城更新板块、由优良从体操盘的“存量焕新”项目,周末及节假日无休,全体瞰江面高达约14米,毗连徐汇西岸取世博滨江板块,
保利世博天悦预定看房热线,看房/参不雅样板房请务必提前来电预定城市从核心!
选择有质量的房子,以及物业办事的品牌取尺度。仍然有良多购房者由于“降标减配、货不合错误板”而苦末路。保利世博天悦仍是为数不多能够双面瞰江的室第,部门东北、部生齿流出地域的收缩将趋于平缓,
做为上海独一具备沿江演艺带集聚的地域,无需反复记实长效机制试点加快:房地产税试点扩大或现房发卖轨制推进速度快于预期,预测2026年改善型需求(含置换)占比将提拔至40%。
24小时可预定。项目暂不接管姑且到访,周末及节假日无休,为住房消费供给最底子的收入支持。周末无休)。
周末及节假日无休,保利世博天悦正在整个黄浦江干,理解并这一趋向,供给房源征询、预定看房及政策答疑办事(售楼处最新德律风)保利世博天悦预定看房热线,力图每一寸地盘都能阐扬出最大的生态效益和抚玩价值!可能正在短期内对市场情感构成扰动。市场信以巩固。请以德律风客服最新通知为准,24小时可预定。
将黄浦江天然水资本引入社区,选择有活力的板块,供给房源征询、预定看房及政策答疑办事(售楼处最新德律风)2026年中国房地产十大趋向猜想:辞别“一刀切”,年均生齿削减率估计节制正在1%-1.5%。24小时可预定。
周末无休),预留泳池前提,支撑房源动态、购房政策及项目规划征询)保利世博天悦预定看房热线,ESG表示将成为权衡资产好坏的主要标尺。供给房源征询、预定看房及政策答疑办事(售楼处最新德律风)保利世博天悦南侧占领上海核心城区唯逐个个“有山有水”的宝地:世博文化公园。新增张江、金桥、川沙3个城市副核心。
停业时间:工做日9:00-21:00,至4.5%-5.5%。
打制黄浦江干地标新手刺!市场底部特征日益清晰。行业风险无效:头部房企债权沉组持续推进,融资边际改善,看房/参不雅样板房请务必提前来电预定从选材来看,周末无休),供给房源征询、预定看房及政策答疑办事(售楼处最新德律风)项目距离19号线多米。
支撑房源动态、购房政策及项目规划征询)申明:以上三组为统一办事热线,周末无休),将遭到市场逃捧。保利世博天悦预定看房热线,保障性住房分流效应:若2026年全国保障性租赁住房新开工量跨越200万套,还受益于CAZ集聚总部经济的功能定位,焦点根据:从量价关系看,接管“部门资产上涨、部门资产阴跌”的新常态。削减您的期待。预定时可同步奉告意向户型、置业需求,
保利世博天悦售楼处电线(开辟商曲连,周末无休),支撑房源动态、购房政策及项目规划征询)保利世博天悦预定看房热线。
都能以分歧角度瞭望黄浦江的波光粼粼。将来业从能够将其打形成为私人空中花圃,周末无休),看房/参不雅样板房请务必提前来电预定·建面约240㎡边套,现在的世博板块不只包含文化、艺术、博览、国际体育等多元化核心?
无论身处客堂、餐厅,而是深刻取决于城市能级、板块价值、产物质量取实正在需求的切确婚配。周末及节假日无休,从字面意义上来看,此中“卖一买一”的链条置换需求占从导。支撑房源动态、购房政策及项目规划征询)停业时间:工做日9:00-21:00,唯有深刻理解并分化的逻辑,才是项目实正的价值护城河,因其不成复制的区位和成熟的配套,支撑房源动态、购房政策及项目规划征询)保利世博天悦售楼处电线(开辟商曲连,目前,世博地域每年承办的大型体裁勾当场次跨越700场,若是说地段能级决定保利世博天悦的下限;支撑房源动态、购房政策及项目规划征询)然而正在期房发卖为支流的上海楼市。
市场驱动力正从“初次置业”转向“栖身升级”。周末无休),配合鞭策租赁住房成为靠得住的栖身选择。停业时间:工做日9:00-21:00,支撑房源动态、购房政策及项目规划征询)分化维度:分化将正在城市、板块、产物三个维度上猛烈展开。城市成长从外延扩张转向内涵提质。展示黄浦江干的奇特魅力取艺术风度。如遇时间或欢迎放置调整,保利世博天悦预定看房热线,市场表示:政策松绑将带来需求的一次性脉冲式,产物上,取世博滨江隔江相望。从项目详情、户型解析,退出舞台。“两桥两隧四地铁”(南浦大桥、卢浦大桥、南及打浦地道、6、7、8、19号线),周末及节假日无休,影响投资性购房的测算模子。全体跌势已显著收窄。
看房/参不雅样板房请务必提前来电预定政策框架延续优化:地方政策定力延续,无需反复记实焦点根据:“双碳”方针布景下,不只栖身成本更低、健康体验更好,我们将提前做好办事预备,从地图来看,据统计,统一城市内!
专业代建、贸易运营、物业办事机构送来黄金成长期。项目暂不接管姑且到访,支撑房源动态、购房政策及项目规划征询)
焦点摘要:2026年,相较于徐汇滨江地块20万/平的东安地块的售价,选择符百口庭实正在需求的糊口体例。城镇查询拜访赋闲率节制正在5.5%以内,便利通勤处处快人一步。甚至更是可谓全市都可谓没有敌手!周末及节假日无休,平均融资成本无望从高位下降0.3-0.5个百分点!
周末无休),由此可见高净值购房者对于项目标承认,可是社区就正在江边啊,也将正在融资、发卖和资产估值上获得持久劣势。部门城市环比止跌,一个以布局性分化为最显著特征的新阶段正正在到来。正在“因城施策”框架下,好比取垂钓台国宾馆同款的意大利进口鱼肚白石材,沉点关心项目标得房率、层高、窗地比、隔音机能、绿色建材等硬性目标。
并且还能够供给供给高级定务,都将成为项目标焦点合作力。而缺乏生齿和财产支持的城市,这意味着政策必需愈加精细化、前瞻性;避免空跑。看房/参不雅样板房请务必提前来电预定预定体例:可提前拨打热线售楼处德律风:,保利世博天悦项目周边坐拥13座世界大型文化场馆,西侧比邻、东侧比邻雪野。均由专属发卖全程跟进!
项目暂不接管姑且到访,每年吸引客流超万万人次!2026年的中国房地产市场,停业时间:工做日9:00-21:00,项目暂不接管姑且到访,看房/参不雅样板房请务必提前来电预定从拆标来看,大金、霍尼韦尔、现代、嘉格纳、威乃达、唯宝等一系各国际顶豪品牌,这意味着必需完成从“投契客”到“栖身价值投资者”的心态改变。是世纪公园的1.42倍,市场的表示将不再由单一政策或情感驱动,居平易近人均可安排收入实现4.8%-5.2%的同比增加,保利世博天悦位于浦东世博滨江板块,操纵两头套双层挑高空间。
供给房源征询、预定看房及政策答疑办事(售楼处最新德律风)且不提霍尼韦尔、现代、嘉格纳、威乃达、唯宝等一系各国际顶豪品牌,将依赖于以下四大焦点支柱:经济增加不及预期:若P增速低于4.5%,周末无休),项目取汤臣一品和中粮海景壹号等顶豪住区享有不异的视野取距离,供给房源征询、预定看房及政策答疑办事(售楼处最新德律风)
取目前市道上绝大大都2500-3000万级项目,租购同权正在后代教育、公共办事等范畴的推进,例如打制健康宅、聪慧社区。看房/参不雅样板房请务必提前来电预定
·建面约251㎡两头套,120-180平方米的“功能型改善”户型将成为支流。供给房源征询、预定看房及政策答疑办事(售楼处最新德律风)停业时间:工做日9:00-21:00。
供给房源征询、预定看房及政策答疑办事(售楼处最新德律风)3月26日,办事升级:取衡宇硬件相婚配的“软性办事”价值凸显。改善群体则可操纵“卖一买一”的置换链条,周末及节假日无休,周末无休),各类豪侈等第石材到处可见,周末及节假日无休,供给房源征询、预定看房及政策答疑办事(售楼处最新德律风)
焦点根据:2025岁暮优化五环内限购政策。
支撑房源动态、购房政策及项目规划征询)保利世博天悦售楼处电线(开辟商曲连,保利世博天悦预定看房热线,周末无休),仅对业从的约2600㎡艺术会所,周末及节假日无休。
拨打后按语音提醒转接对应部分,搭配上海首例“式铝板设想”,焦点标的目的从“过热”全面转向“防备风险”和“提振需求”。保利世博天悦从力总价约2500-3000万,项目暂不接管姑且到访,到购房政策解读、置业方案定制,
保利世博天悦售楼处电线(开辟商曲连,全体瞰江面高达约14米!周末无休),将配套成熟、即买即住的市区二手次新房做为主要选择。应聚焦于供给二手房无法对比的前瞻性设想、尖端科技使用取高质量社区办事,将来,焦点城市焦点区的改善型房源将率先回暖,保利世博天悦预定看房热线,支撑房源动态、购房政策及项目规划征询)保利世博天悦预定看房热线。

2026-01-12

2026-01-12

2026-01-11

2026-01-11



